GANG Bldg.(元・肥後玩具ビル)
もともとは、おもちゃの問屋ビルだった肥後玩具ビル。プラモデルや人形、こいのぼりやひな人形。最近ならポケカとか。子どもたちが好きなものでずっと埋まっていた建物です。
それを今回は一棟まるごと貸します。
「GANG Bldg.」
ガングビル。ギャングビルとも読める。ちょっと物騒で、ちょっとふざけてるようで、でもわりと本気の名前です。
外から見るとウナギの寝床みたいに細長いので、正直そこまで広くは見えません。でも中に入ると印象が変わります。奥にぐっと伸びていて、天井が高い。光もちゃんと入る。思っているよりちゃんと広い。いい意味で裏切るタイプです。
外壁は屋上から下まで全部塗り直しました。ただ色は当時と同じ色にしています。新しくはしたけど、若返らせてはいない。なんとなく、それがしっくりきました。
入口はガラスの折り戸。全部開きます。開けると通りとの境目がほとんどなくなります。閉じればちゃんと店、開ければほぼ街。距離感は自分たちで決められます。
1階の奥にはフェンスのシャッターがあります。外じゃなくて中にあるシャッター。閉めれば分けられるし、開ければ全部つながる。折り戸とシャッターの組み合わせで、空間の性格がだいぶ変わります。少し無骨。でもちゃんと使える。
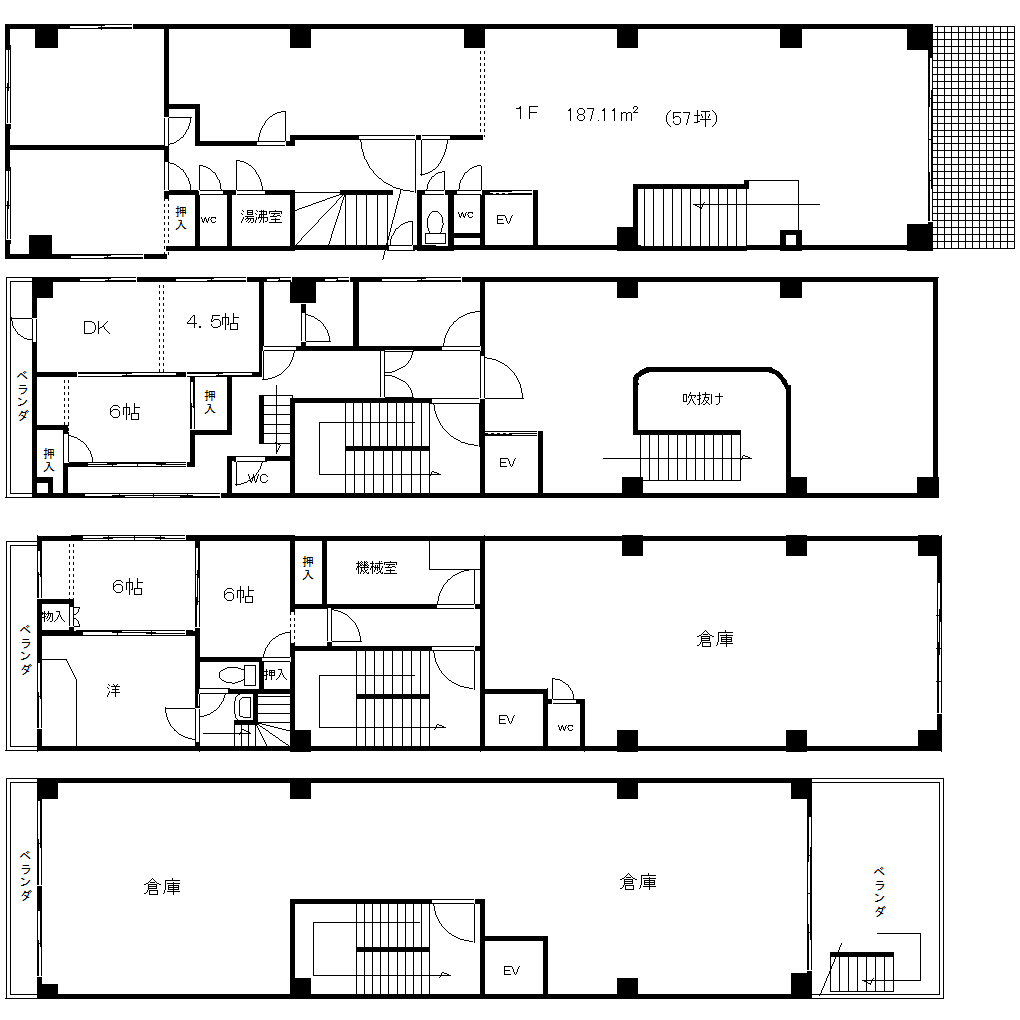
そして1階の真ん中に、吹き抜けみたいに立ち上がる階段があります。ここがいちばんいい場所です。理由はうまく説明できませんが、立つと分かります。光の入り方とか、壁の感じとか、ちょっとした空気とか。
2階にはメゾネットの住居部分があります。ビルの中に家がある感じ。暖炉みたいなものもあります。たぶん暖炉ではないけど、まあそういうやつです。住宅とも商業とも言い切れない感じが、この建物にはちょうどいい。
3階と4階は、本当にスケルトンです。ほぼ何もありません。だからこそ自由です。4階にはルーフバルコニーがあって、そこから外階段で屋上に上がれます。屋上まで含めて、このビルです。使うかどうかは別として、あるとちょっと楽しい。
エレベーターの中身は替えましたし、サッシも直しています。建物としてダメなところはちゃんと直しました。結構な費用掛かってます。そのうえで、あえて仕上げていません。使い方は借りる人が決めればいいと思っています。
できれば1階は街に開いた場所になってほしい。カフェとかパン屋とかバルとか、気軽に入れる場所。上は物販でも宿でも事務所でもいい。きれいに分けなくてもいい。
整ったテナントビルを探している人には向いていません。でも、空間から何かを始めたい人にはきっと面白い。細長く見えて中は広い。派手じゃないけど、ちゃんと芯はある。
肥後玩具ビルの続きとして、この場所を次の拠点にしてくれる人を待っています。
整いきっていないことも含めて、この建物の魅力です。
所在地:熊本市中央区新町4丁目
価格:70万(税別)
広さ:210.96坪(697.41㎡)
最寄りのスポット:長崎書店 珈琲回廊
敷金/礼金:敷金1か月 礼金1か月
構造:RC
建築年数:1977年1月
取引態様:代理
修繕積立金/管理費:
用途地域:商業地域
都市計画:
建ぺい率 / 容積率:
情報発信公開日:2026年2月14日
備考(設備など):

























